Широкий спектр предложений для вашего бизнеса

Аренда

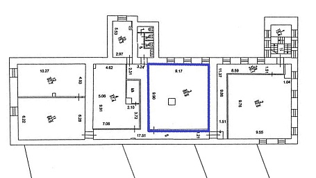
Офис открытой планировки

Площадь м2: 89.9
Стоимость ₽: 197 780
Цена за м2 в год: 26 400

Поделиться

Офисное помещение на территории Технопарка "ЭЛМА-СЕМЁНОВСКИЙ" общая площадь 89.9 м2. Открытая планировка. Помещение после косметичесого ремоанта. Кондиционеры, АПС. 3 провайдера.

  • Доступ для резидентов 24/7
  • Охраняемая территория
  • 4 минуты ходьбы от м.Электрозаводская
Возможен индивидуальный подбор услуг: Профессиональный клининг, охраняемая парковка на территории, высокоскоростной интернет, телефония.
Доступ на территорию 24/7.  
Инфраструктура: столовая, кафе, магазин, конференц зал.

В помещении выполнена стандартная офисная отделка:

  • Напольное покрытие -  ламинат
  • Стены - окрашенный ГКЛ
  • Потолок – «Армстронг»
  • Пластиковые окна
  • Высота потолка 2,5 м

Режим работы  Технопарка "ЭЛМА-СЕМЁНОВСКИЙ" - 24/7.
На территории действует центральный ресепшен. Осуществляется круглосуточная работа службы охраны и эксплуатации, организованна пропускная система доступа на территорию, услуги связи, клининга и технического обслуживания.

Предоставление юридического адреса.

Вся необходимая инфраструктура на территории комплекса: столовая, кафе, вендинговые аппараты, минимаркет, банкоматы, зона отдыха.

Обширная парковка.

Технопарка "ЭЛМА-СЕМЁНОВСКИЙ" предлагает офисные помещения класса B на границе ЦАО и ВАО г. Москвы.
Имеет пешую доступность от нескольких станций метро:
4 мин. - м. Электрозаводская
8 мин. - м. Семеновская
12 мин. - м. Преображенская пл.

Близость нескольких крупных магистралей:
ТТК, СВХ, набережная Яузы, ул.Бакунинская, Б. Черкизовская, Щелковское ш., ш. Энтузиастов.

В 5 минутах крупный транспорно-пересадочный узел (ТПУ)
Электрозаводская (Арбатско-покровская и Некрасовская линии метро,
казанское направление ЖД).

Инфраструктура Объекта

icon

Минимаркет

icon

Обширная парковка

icon

Зона отдыха

icon

БАНКОМАТЫ И ТЕРМИНАЛЫ

icon

Столовая и кафе на территории

Менеджеры

manager-photo manager-photo
Шарова Ольга

Ведущий менеджер по аренде Технопарка «ЭЛМА-СЕМЁНОВСКИЙ»

Телефон: +7 (925) 172-90-94
+7 (499) 286-33-33 доб. 726
E-mail: o.sharova@elmagroup.ru Связаться
manager-photo manager-photo
Большова Дарья

Ведущий менеджер по аренде Технопарка «ЭЛМА-СЕМЁНОВСКИЙ»

Телефон: +7 (925) 037-19-80
+7 (499) 286-33-33 доб. 712
E-mail: d.bolshova@elmagroup.ru Связаться
manager-photo manager-photo
Гусинская Элеонора

Менеджер по аренде Технопарка «ЭЛМА-СЕМЁНОВСКИЙ»

Телефон: +7 (925) 844-84-78
+7 (499) 286-33-33 доб. 704
E-mail: e.gusinskaya@elmagroup.ru Связаться

Звоните в наш колл-центр и наши ведущие менеджеры помогут вам с поиском офиса, площадей под производство или склад.

+7 (499) 286-22-77

С понедельника по пятницу с 9 до 18 мск.

Заявка на звонок

Я даю своё согласие на обработку персональных данных.
Звоните в наш колл-центр и наши ведущие менеджеры помогут вам с поиском офиса, площади под производство или склад. +7 (499) 286-33-33 С понедельника по пятницу с 9 до 18 мск.
Записаться на просмотр
Я даю своё согласие на обработку персональных данных.
Сейчас операторы не в сети.
Введите свой номер телефона и удобное для Вас время звонка.
Я даю своё согласие на обработку персональных данных.
Записаться на просмотр
Я даю своё согласие на обработку персональных данных.

Личный кабинет

Регистрация
Войти как пользователь
Вы можете войти на сайт, если вы зарегистрированы на одном из этих сервисов: